
Terrain constructible à vendre à Canach
- Référence : FB-CA-9.66
- Type : Terrain constructible
- Superficie terrain : +/- 9,66 ares
- Prix de vente : 1 100 000 €
- Disponibilité : Immédiate
Classe énergétique
NC
Classe d'isolation thermique
NC
Description
**À Vendre : Terrain à bâtir de 9,66 ares à Canach ? Projet pour 4 maisons****Localisation :**
Canach (commune de Lenningen, canton de Remich) ? charmant village recherché, bénéficiant d'un cadre de vie agréable et d'un accès rapide vers Luxembourg-ville, Remich et les principaux axes routiers.
**Le projet :**
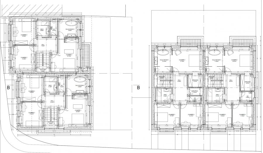
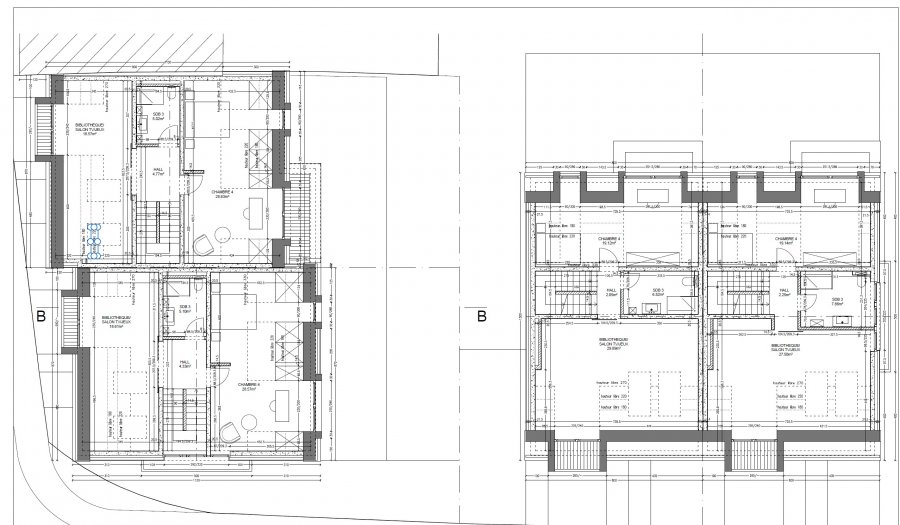
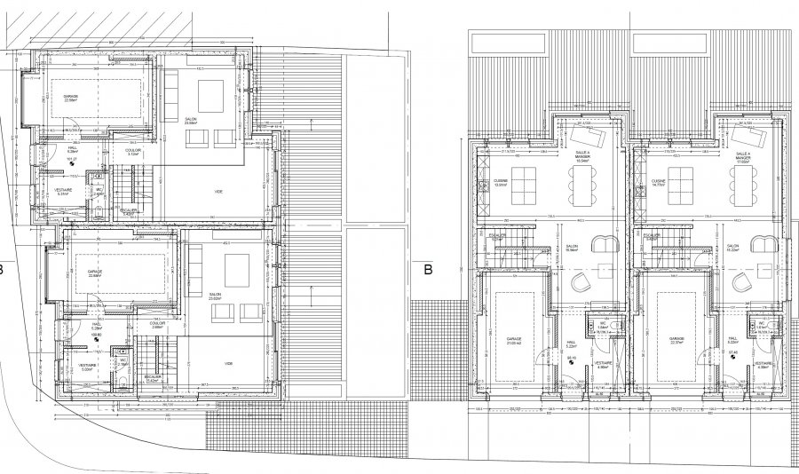
Terrain à bâtir d'une superficie de 9,66 ares, disponible immédiatement, accompagné d'un projet d'architecte prévoyant la construction de 4 maisons unifamiliales.
Les plans ont été conçus dans le respect du règlement sur les bâtisses de la commune de Lenningen ? section Canach, garantissant une intégration harmonieuse au quartier et un développement cohérent du site.
Cette parcelle offre une excellente opportunité pour promoteurs, investisseurs ou particuliers souhaitant réaliser un projet résidentiel de qualité dans un environnement paisible et en plein essor.
**Caractéristiques principales :**
Superficie totale : 9,66 ares
Étude d'implantation et plans d'architecte réalisés
Possibilité de division en 4 lots individuels
Raccordements aux réseaux publics à proximité (eau, électricité, égouts)
Orientation favorable et cadre verdoyant
Quartier résidentiel calme et bien desservi
**Atouts du site :**
Emplacement recherché entre campagne et ville
Proximité immédiate des commerces, écoles et transports
Accès rapide vers Remich, Sandweiler et Luxembourg-ville
Environnement paisible et verdoyant
Fort potentiel de valorisation à moyen terme
**Conditions de vente :**
Disponibilité : immédiate
Prix : 1 100 000
Dossier complet (plans, études et informations urbanistiques) disponible sur demande
**Contact :**
?? +352 621 265 450
?? info@sigelux.lu
Caractéristiques
Extérieur
Terrain9.66 ares